Мегаполис-строй
Дизайн Интерьера и Ремонт квартир в Москве и Московской области / remont-megapolis.ru
Тел: +7 (495) 133-76-25
E-mail: info@remont-megapolis.ru
Звоните ежедневно с 10:00 до 20:00!
Арсений
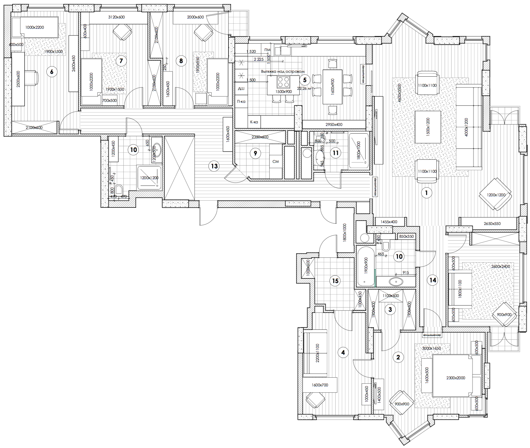
В рамках этого интересного проекта по Дизайну Интерьера и Ремонту квартиры были объединены три квартиры в одну большую. В итоге получилась замечательная квартира 230 м2 с тремя детскими, просторной гостиной, функциональной и вместительной кухней и множеством мест хранения.

Просторная гостиная с множеством окон так и манит расслабиться. Шикарный диван приглашает приятно провести время за просмотром любимого фильма или чтением книги. На полу инженерная доска беленого дуба. Стены покрашены. Потолки - гипсокартон. Скрытые подсветки дают мягкий свет вечером.
Стеллажи интересной формы - изюминка этой гостиной.
Хотите такой же красивый Ремонт квартиры? Оставьте Ваш телефон и мы перезвоним Вам!
Мегаполис-строй
Дизайн Интерьера и Ремонт квартир в Москве и Московской области / remont-megapolis.ru
+7 (495) 133-76-25
info@remont-megapolis.ru
Звоните ежедневно с 10:00 до 20:00!
Политика конфиденциальности
Редактируемый текст
Данный сайт использует Cookie
Редактируемый текст